Visualisierung 1

Wettbewerb Volksschule Goumoëns

Im Berner Stadtteil Mattenhof-Weissenbühl wird dringend zusätzlicher Schulraum benötigt. Dieser soll auf dem Areal Goumoëns realisiert werden und umfasst 23 Klassenzimmer samt Spezial- und Nebenräumen, eine Ganztages- und Tagesschule, eine Doppelturnhalle, entsprechende Aussenbereiche sowie eine Rollsportanlage. Das Areal liegt in einem strategisch wichtigen Gebiet mit grossem Aufwertungs- und Entwicklungspotenzial, welches gleichzeitig bedeutender Frei- und Erholungsraum für den Stadtteil III darstellt. Das Gebiet ist lärmtechnisch durch die nächtlichen Lärmemissionen eines BLS Bauzugs betroffen, die für die vorgesehene Schulnutzung aber nicht relevant sind.

Das viergeschossige Holzgebäude ist quadratisch und schliesst das Volumen zur Industriezone ab. Das transparente Erdgeschoss sorgt für die Verbindung zwischen städtischem Raum und Natur. Die beiden Holzbauten werden dem Betonsockel aufgesetzt und werden über das Sockelgeschoss verbunden. Das Gesamtvolumen korrespondieren vom Höhenverlauf mit dem nordöstlichen Gebäude vis-à-vis des Bahngleises. Durch die städtebauliche Setzung werden die Schulhöfe zur Matte und Wald orientiert, sodass der Bezug zur Natur immer gewährleistet wird.

Zudem wird durch die Setzung der Baumbestand respektvoll behandelt und im Konzept integriert. So kann sich die Biodiversität und Vegetation im Bereich der bestehenden Bäume weiterentwickeln. Auch der öffentliche Spielplatz bleibt bestehende und sorgt für die Identität des Ortes.

Visu 2 weniger quali

Mit dem transparenten Erdgeschoss wird aufgezeigt, dass verschiedene Unterteilungen möglich sind. In alle Himmels-richtungen verfügt das EG eine Transparenz und korrespon-diert mit dem Freiraum. Die Obergeschosse werden eher geschlossener gehalten und verfügen im Raster punktuelle Öffnungen. Die Klassenzimmer werden jeweils mit Rippen überspannt. Die Zwischenbereiche werden für Akustik und Haustechnik genutzt. So soll in den Klassenzimmern keine sichtbaren Installationen an der Decke montiert werden. Durch die Akustikmassnahmen werden die Rippen weiter-hin sichbar bleiben, jedoch werden die Räume gefasst. Die Gruppenräume welche jeweils zwischen zwei Klassen-zimmer geplant werden sollen belebende Elemente sein. Durch das Öffnen der Faltwände, wird die Begegnungszone zum Aussenraum. Die grosszügige Zone soll belebt werden und kann durch die tiefe verschieden genutzt werden.

Visualisierung 4

Im Weiteren wurde der Bestand maximal im Konzept integriert. Das Wegsystem wurde beibehalten. Die Skateranlage wird neu eher zentral organisiert. Diese soll sich durch ihre organische Form in der Topographie und zwischen den Bäumen zurechtfinden. Der Allwetterplatz sowie der Rasenplatz werden durch eine organisch geformte Pergola zum Schulhof optisch unterteilt. Zur Industriezone werden die Parkplätze für Autos und Anlieferungen geplant. Der Aufstieg auf das Niveau der Matte erfolgt über eine Rampe oder Treppe. Die westliche Gebäudeecke lässt eine Verbindung zwischen Industrie und Schule offen, was sich zu einem Empfangshof für Schüler bildet.

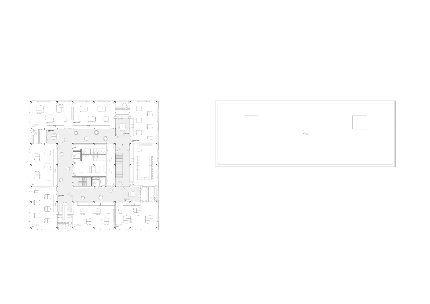
Grundriss 2 UG
Grundriss 1 UG
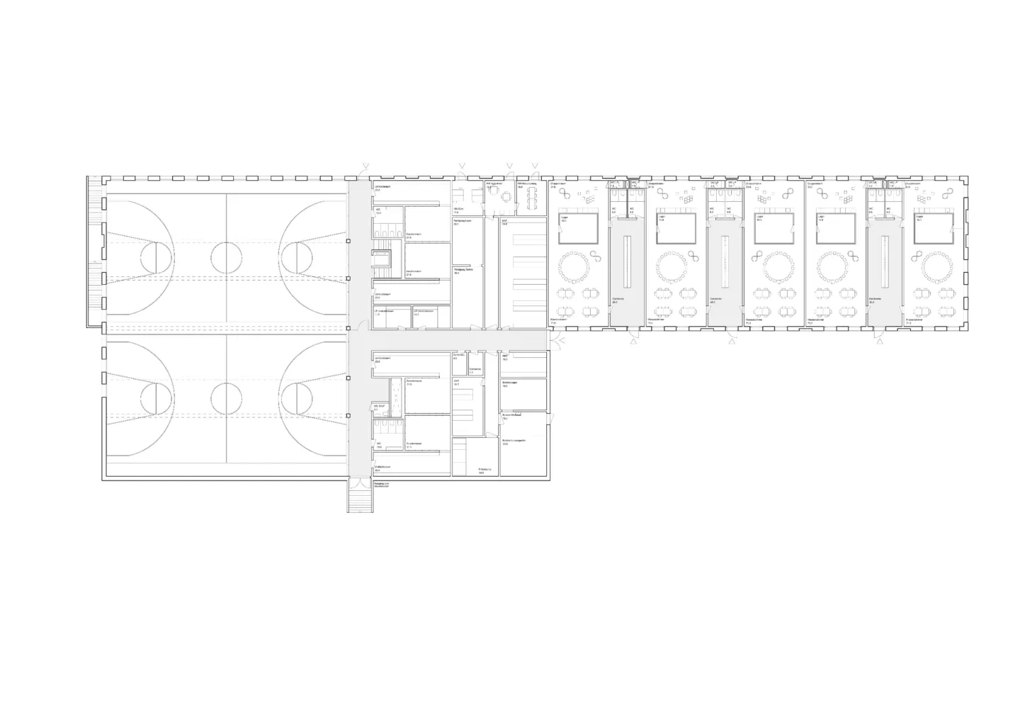
Grundriss 1 OG
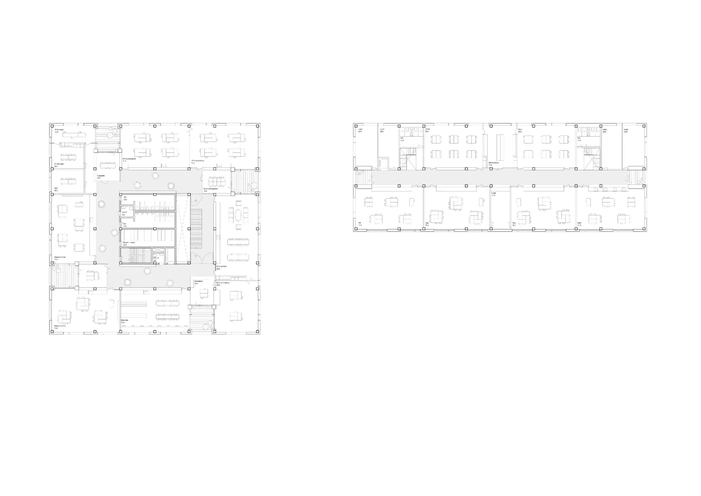
Grundriss 2 OG
Grundriss 3 OG