Isb bottigenstrasse 76 006

Sanierung MFH Bottigenstrasse

Bottigenstrasse 76, 3018 Bern

Nachhaltige Renovierung

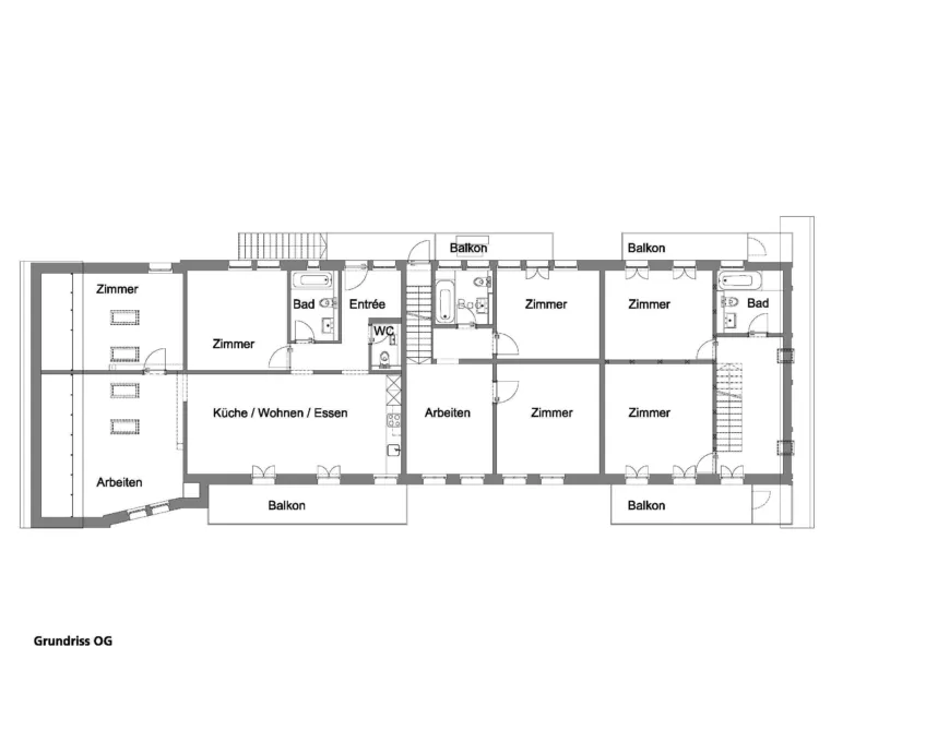
An der aus dem 19. Jahrhundert stammenden Liegenschaft wurden in den letzten Jahren nur zwingend notwendige Unterhaltsarbeiten vorgenommen; tiefgreifende Erneuerungen haben in diesem Zeitraum nicht stattgefunden. In enger Zusammenarbeit mit der städtischen Denkmalpflege wurde beschlossen, bei der Sanierung die vorhandene Gebäudestruktur mit ihren anspruchsvollen Raumteilungen in der Grundform zu belassen. Um die Attraktivität zu erhöhen, wurden die Wohnungen so angeordnet, dass spannende Raumfolgen mit geschützten Bauelementen - wie Riegel- und Dachkonstruktionen erhalten blieben.

Beim Baubeginn, bzw. nachdem sämtliche Wand- Decken- und Bodenverkleidungen entfernt wurden, stellte sich heraus, dass ein Grossteil der alten Holzkonstruktion in einem sehr schlechten Zustand war. In Absprache mit der Denkmalpflege wurde darum entschieden, die komplette Tragkonstruktion mit Fassaden, Böden, Decken und Dach zu ersetzen, gleichzeitig aber Gebäudeform und -volumen wieder wie im Originalzustand aufzubauen. Dabei wurden neue erdbebensichere Wohnungstrennwände aus Beton mit zuvor demontierten und gut erhaltenen Holzriegelwänden und Deckenbalken kombiniert eingebaut.

Isb bottigenstrasse 76 014

Familienfreundliche Umgebung

Mit der Neueinteilung durch einen Wohnungsmix von zwei 3½-, einer 4½- und zwei 5½-Zimmerwohnungen entstanden auf diese Weise trotzdem attraktive Grundrisse. Sämtliche haustechnischen Installationen wie Elektro-, Heizungs- und Sanitäranlagen, Nasszellen, Kücheneinrichtungen sowie die Oberflächen der Böden, Wände und Decken wurden vollumgänglich ersetzt. Die Wärmeerzeugung mit Öl und Holzeinzelöfen wurde durch eine kondensierende Gasheizung gemäss geltenden Vorgaben umgestellt.

Im Aussenbereich wurde die Zugangswege und die Grünanlagen erneuert, wobei der alte Baumbestand erhalten blieb. Die Umgebung wurde in Anlehnung an die früheren Nutzgärten und Arbeitsräumen gestaltet. Eine Lärmschutzwand sowie verschiedene Wege, Plätze und Spielmöglichkeiten sorgen für eine kinderfreundliche Atmosphäre.

Isb bottigenstrasse 76 034