IMG 4245

Sanierung Konsumstrasse 13

Konsumstrasse 13, 3007 Bern

Gestaltung mit Weitblick

An der Konsumstrasse 13 in Bern konnten wir ein ehemaliges Bürogebäude sanieren und ausbauen. Nun finden darin 12 moderne 2.5- und 3.5-Zimmer Wohnungen sowie zwei Gewerbeflächen Platz. Im früheren geheimen Sitzungszimmer für den Bundesrat, welches sich in einem kleinen Anbau gegen den Innenhof befindet, steht nun eine Kita. Das Gebäude mit seiner auffälligen Waschbetonfassade erhielt nicht nur ein neues Innenleben, sondern auch ein neues Dach, neue Fenster und drei neue Lukarnen, welche im Dachgeschoss eine grosszügige und helle Maisonettewohnung ermöglicht haben.

IMGL9635

Eichenparkett für stilvolles Wohnen

Die hellen Wohnungen mit vielen Fensterfronten verfügen alle über moderne Küchen und Nasszellen sowie einen schönen gebürsteten Eichenparkett. Ausserdem hat jede Wohnung eine eigene Waschmaschine und Trockner, so dass ein gemeinsamer Waschraum im Untergeschoss nicht nötig ist. In der Tiefgarage, die die Mieter mit anderen umliegenden Liegenschaften der Berninvest AG teilen, befindet sich genügend Platz für Autos, Mofas und Fahrräder.

IMG 4279

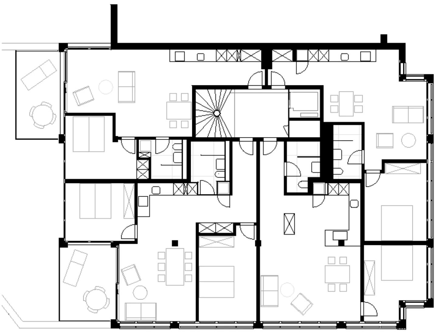
Grundriss 1.Obergeschoss

1 OG Kopie

Grundriss 3.Obergeschoss

3 OG Kopie

Grundriss Dachgeschoss

DG Kopie

Um unsere Website für Sie optimal zu gestalten und fortlaufend verbessern zu können, verwenden wir Cookies. Weitere Informationen zu Cookies erhalten Sie in unserer Datenschutzerklärung.